物件詳細 お問い合わせ無料!
- 物販店
- サービス店・その他業種
- 飲食店
居抜き物件 大阪市中央区船場中央3丁目3-9(本町駅) 徒歩1分の貸店舗です。
大阪メトロ御堂筋線 本町駅 徒歩1分
| 賃料220,000円(税別) | 管理費119,188円(税別) |
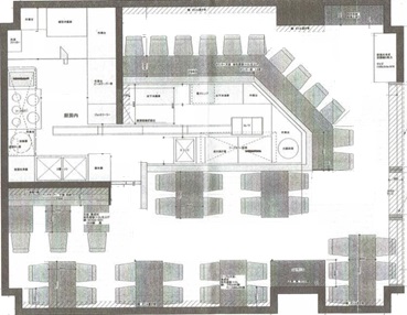
17.64坪(58.34㎡) |
最終更新:2026/01/18 04:35
居抜き物件
| 物件番号 | 34464 【一般物件】 |
|---|---|
| 建物名 | 船場センタービル9号館 |
| 所在地 | 大阪市中央区船場中央3丁目3-9 |
| 所在階 | B2階 |
| 賃料 | 220,000円(税別) |
| 管理費 | 119,188円(税別) |
| 保証金 | 1,500,000円 |
| 敷金 | ---- |
| 礼金 | ---- |
| 解約引 | 750,000円(税別) |
| 現況 | 賃貸中 |
| 引渡状況 | 現状渡 |
| 引渡時期 | 相談 |
■取引形態:仲介
■契約が成立した場合仲介手数料を申し受けます。
■敷金・保証金(預り金)以外には、別途消費税が課税されます。
■広告製作中に契約済みの場合はご容赦下さい。
■外観・内装・図面等現状が相違する場合は現状有姿にてご容赦下さい。
- 繁華街に隣接
- ビジネス街に隣接
- ランチ客が見込める
- 観光スポット隣接
- 交通便利、駅近物件
- 焼肉、焼鳥、中華など重飲食可
- 駅前、繁華街エリア
- オフィス街
- アフター5客が見込める
- 交通便利、2駅以上利用可
- テイクアウト店舗に適す
- 新規開業、独立向き
スタッフおすすめコメント
大阪メトロ「本町」駅直結の9号館地下2階
■約17.65坪、居酒屋居抜き店舗です♪
■造作譲渡代300万円税別 重飲食可能!
■昼・夜の集客見込み抜群!
■駅直結で雨にも濡れません。
■厨房機器リース引継ぎ希望
※船場センタービル館内規則あり













